返回>>
200K-75KHz水聲換能器DYW-75/200-E
名稱:200K-75KHz水聲換能器
型號:DYW-75/200-E
量程:200KHz 0.6~120m 、75KHz 1.8~300m
工作溫度:-40~+80℃
頻率:200KHz±5%/75KHz±5%
工作電壓:峰值電壓<1500Vpp
本產品適用于:超聲波流量計,水下測距儀
產品詳情
一、換能器的主要技術指標
項目 | 技術指標 | 實物圖片 |
名稱 | 200K-75KHz水聲換能器 |
|
型號 | DYW-75/200-E | |
頻率 | 200KHz±5%/75KHz±5% | |
建議量程 | 200KHz 0.6~120m 75KHz 1.8~300m | |
最小阻抗 | 1500Ω±20% | |
電容量 | 1000pF±20% @1KHz | |
靈敏度 | ①:頻率:75KHZ、發射電壓:500Vpp, 距離:0.8m,回波幅度:800 mV; ②:頻率:200KHZ、發射電壓:500Vpp, 距離:0.8m,回波幅度:4.4 V; | |
工作電壓 | 峰值電壓<1500Vpp | |
工作溫度 | -40~+80℃ | |
壓力 | ≤10公斤或者1MPa | |
角度 | (波束寬度)半功率角@-3dB:10.5°±10%, 銳度角:24°±10%(200KHZ) (波束寬度)半功率角@-3dB:27°±10%, 銳度角:67°±10%(75KHZ) | |
外殼材質 | POM | |
用途 | 超聲波流量計,水下測距儀 | |
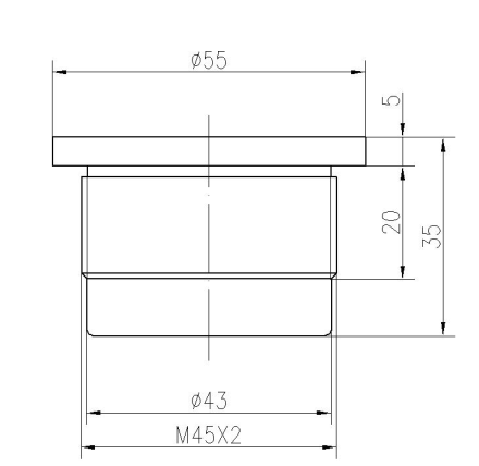
安裝尺寸 | 詳見產品結構圖 | |
防護等級 | IP68 | |
重量 | 137g±5%(線長:2m) | |
接線說明 | 紅:換能器+,白:換能器-,黑:屏蔽線;(默認不帶溫度傳感器) | |
二、換能器的導納曲線圖

三、換能器產品結構圖

上一條
1MHz水聲換能器DYW-1M-01N
下一條
DYW-50/200-NB超聲波淤泥界面儀換能器
QQ:2187169532
手機:18050180580
郵箱:2187169532@qq.com
地址:福建省福州市晉安區福興經濟開發區紅光路11號E座







